隨著環保意識的增強和能源資源的緊缺,許多國家都將新能源汽車列為優先發展的戰略產業。作為全球最大的新能源汽車市場,中國正以驚人的速度推動著該行業的發展。
中國新能源汽車產業的突飛猛進還得益于技術創新和產業協同發展。眾多知名的汽車制造商和科技公司紛紛投入到新能源汽車領域。同時,中國的電池制造、充電基礎設施建設和新能源汽車零部件制造等產業也得到快速發展,形成了完整的產業鏈條。

水土富庶、人杰地靈的龍城常州,近年來也因新能源產業的“狂飆”大放異彩。新能源領域產值突破5000億元,動力電池、新能源汽車、光伏三大產業齊頭并進。2015年,中創新航落戶常州金壇,成為該區引進的第一個特大型央企投資的戰略性新興產業項目,也是常州第一個鋰離子動力電池項目。

2021年,中創新航正式啟動江蘇常州三期項目建設,規劃占地約555畝,建筑面積約為44.2萬㎡,計劃產能23.2GWh,投資超100億元,為常州打造“國際化智造名城”注入強勁動力。

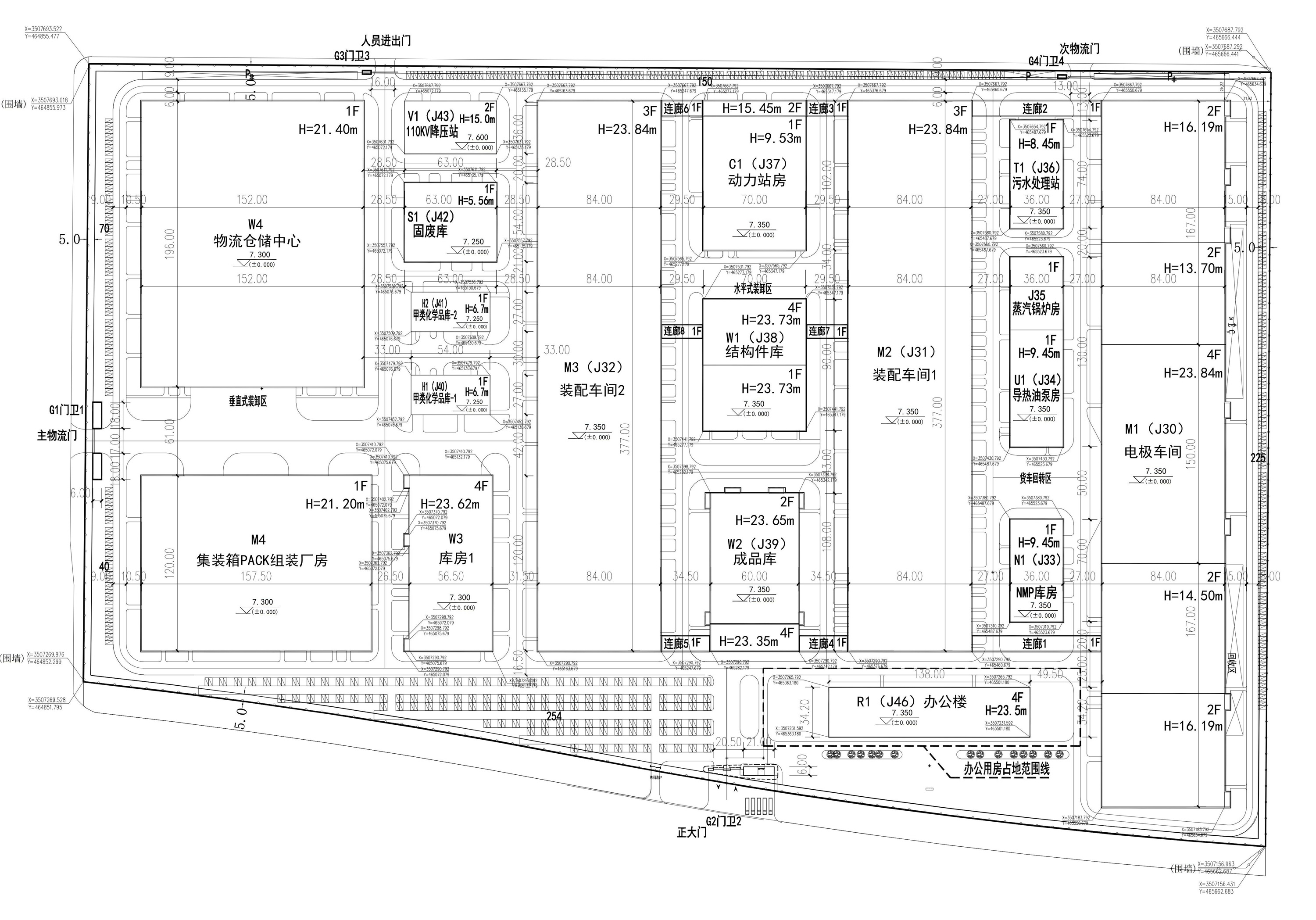
總平面圖

立面圖
地塊內布局三大區域,南側為一棟獨立的四層研發辦公樓;東西方向以生產車間和倉儲中心為主,通過不同體塊的設計碰撞出高低錯落的功能空間。

為實現綠色環保閉環發展,項目中配有固廢庫,用于動力電池材料的回收再利用。并預留光伏發電系統安裝區域。通過污水處理站和地下雨水收集池,有效利用可再生水源滿足綠化、澆灌、沖廁等需求。項目還通過結構設計調整最大限度利用自然光滿足基本照明需求,符合中創新航綠色環保的生產經營理念。

效果圖
中創新航江蘇三期項目由多個單層和多層的建筑單體組成,最長跨度可達400余米,屬于超大體量建筑類型。

由于新能源動力電池生產對環境的要求十分嚴苛,包括荷載、消防、潔凈度、空氣溫濕度、空調制冷系統、電氣系統等方面,針對廠房荷載較大、柱網間距大的現實情況,中創新航江蘇三期項目的生產車間采用混凝土主體結構,外墻建材選取了萬事達麗彩鼎?夾芯板系列麗水波紋和V8波紋產品以滿足A級防火需求,并符合生產要求的室內潔凈程度。

作為一款裝配式綠色建材,麗彩鼎?夾芯板產品采用新一代交錯式雙支撐企口以及聚氨酯封邊,板塊之間由中縫相連接,具有超強抗風性能和氣密性,防水防火性能俱佳,保溫隔熱性能也超出行業標準。板材通過工廠預制,大大節省現場人工安裝,提高施工效率,減少建筑垃圾和建材浪費。

麗水波紋和V8波紋兩種組合形態,不僅增加了室內生產空間的美觀度和潔凈度,同時也保證了建筑外立面的平整統一。色彩設計上選擇足銀灰搭配海藍色系,突出了建筑的科技感,強調了新能源動力電池產業的高技術含量、高品質要求、可持續發展的特點。

節能減排,一直都是新能源汽車的標簽,同時,環保和可持續發展成為行業關注的重點,推動著技術和工業鏈的不斷創新與改進。近年來,中創新航圍繞極簡制造、極限制造、綠色低碳制造及智能制造四大制造技術方向持續發力,取得了多項全球領先及行業領先的技術成果。

而萬事達作為專業的金屬圍護制造商和服務商,也將秉承以綠色節能新材料賦能中國制造業,把創新、綠色、數智等新發展理念落實到金屬圍護產品的研發、制造和應用上,積極助力新能源汽車行業構建一個環保、可持續的未來。

