隨著我國居民消費能力的穩步提升,我國飲料食品行業的產業規模也持續保持著較快速度增長。在這個充滿活力的市場中,乳酸菌飲品因其健康營養的特點,尤其受到消費者的青睞。均瑤健康作為國內較早生產與銷售常溫乳酸菌飲品的品牌企業之一,憑借其卓越的產品質量和市場影響力,成為行業的佼佼者。

均瑤健康在宜昌,乳酸菌飲品行業的新焦點

作為均瑤集團的飲品板塊,也是集團第四家上市公司,均瑤健康這家被視為“乳酸菌飲品第一股”的“明星企業”是繼吉祥航空、大東方、愛建集團之后,均瑤集團第四家上市公司。其在2021年啟動了均瑤大健康飲品湖北宜昌產業基地新建年產常溫發酵乳飲料10萬噸及科創中心項目,旨在進一步提升企業的綜合競爭實力。

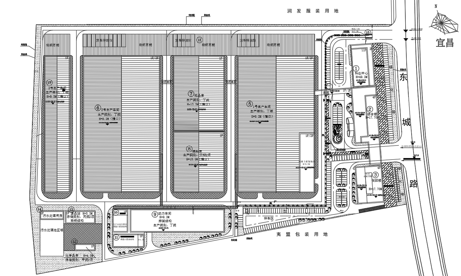
該項目選址位于湖北省宜昌市東城試驗區郭家灣村東城大道,占地160畝,總建筑面積78,335㎡,總投資約5.3億元,項目建設科創中心、綜合樓、生產車間、動力車間、成品庫、輔料庫等17個建筑單體,將配置6條塑瓶生產線、4條無菌冷灌裝PET瓶生產線。在建設過程中,均瑤大健康秉承綠色發展理念,選擇與行業領先的金屬建筑圍護系統供應商萬事達合作,以綠色建材助力項目可持續發展,減少建筑對環境的影響。

工業廠房外圍護建設,綠色環保與高效施工

項目地塊的水平方向依次建設了1號生產車間、成品庫、輔料庫、2號生產車間,廠區南部建設動力車間、廢品站等,由于飲料食品行業對廠房外墻需要考慮到耐腐蝕性和保溫性能等多個方面,最終外墻選用了萬事達的綠色建材——麗彩鼎?夾芯板,該板材已通過FM認證,內部應用高密度保溫防火憎水巖棉,防火性能極佳,良好的保溫性能確保維持穩定的生產溫度。
另外,麗彩鼎?夾芯板采用萬事達新一代交錯式雙支撐企口,并以聚氨酯封邊,帶來極佳的氣密水密及抗風性能,為項目車間保駕護航。

外立面色彩方面選擇白色作為主色調,創造了整體建筑群潔凈和現代化的氛圍基調,其間再使用橙色和綠色這樣的明亮線條做點綴,為工廠建筑增添了活力清新、自然健康的情緒體驗。

同時,廠房屋面也采用了萬事達提供的雙層復合保溫屋面,其具有卓越的抗風性能、耐腐蝕性能,持久美觀、可快捷安裝,符合綠色環保的理念。其排水及防水性能都很耀眼,360°卷邊與密封膠的組合,形成超強的氣密性及水密性,有效隔絕外界氣候對內部環境的影響,提升了工作區域的舒適度和能效。

裝配式建筑的完美應用

在該項目中,萬事達也承接了其裝配式鋼結構工程,充分施展了鋼結構建筑環保節能、綠色循環利用、抗風抗震性能優良、輕質高強度、建造速度快等優點。配合前文提到的墻、屋面裝配式建材產品,全都通過工廠預制,運輸到現場,可實現快速安裝,展現出裝配式安裝高效、精確的特點。同時,施工過程中還可以大幅度降低建筑垃圾和污染物的產生,符合可持續發展的理念。萬事達通過將標準化產品與定制化設計的有機結合,在滿足客戶功能性、個性化的要求外,也在提升效率、可持續發展方面交出了優質答卷。

結語

總之,均瑤大健康的這個項目不僅是公司自身發展的里程碑,也是中國飲料食品行業快速發展的縮影之一。隨著消費者對健康生活方式的日益重視,相信飲料食品行業也將繼續以卓越的產品和創新的技術,為消費者提供更健康、更高品質的飲品選擇。而萬事達作為專業的金屬圍護系統供應商,也將秉承“科技與創新賦能綠色建筑”的使命,不斷進行技術升級和工藝突破,以精湛的技能和專業的服務,為客戶提供集美觀與功能為一體的創新解決方案!
