近年來,預制菜作為一種便捷、快速的食品選擇,已經在國內市場逐漸嶄露頭角。預制菜起源于美國,成熟于日本,在過去一年里,中國預制菜產業也迎來了政策紅利。“培育發展預制菜產業”首次寫入中央一號文件《中共中央國務院關于做好2023年全面推進鄉村振興重點工作的意見》,預制菜逐漸成為我國新興零售商品,迎來新一輪的快速發展期。
2023年中國年菜行業市場規模為1291億元,同比增長81.0%,春節也成為了預制菜行業的黃金時期,各大電商平臺的銷售額顯著增長。而萬事達建筑鋼品作為專業的金屬圍護系統供應商,也在持續以創新技術賦能預制菜行業建設。

央廚項目建設
重新定義“一頓好飯”

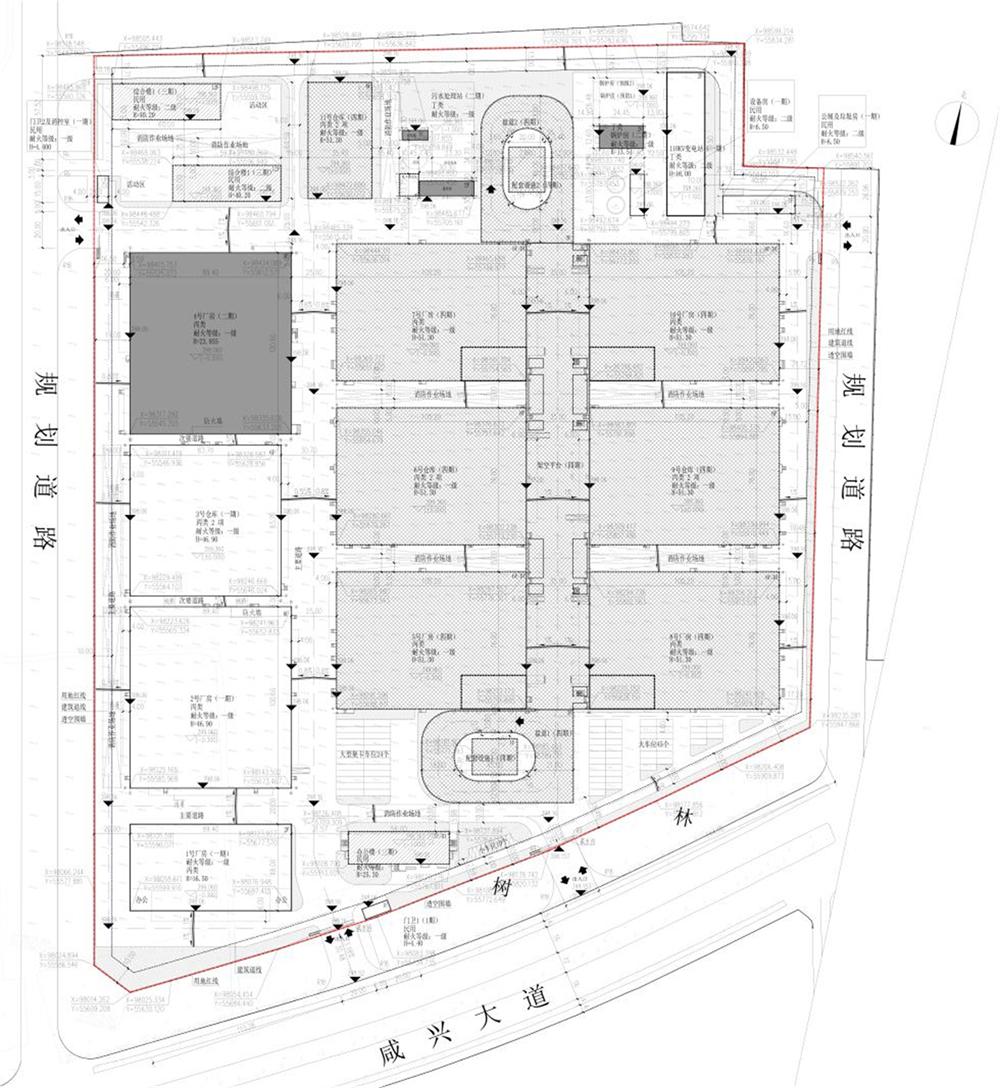
益海嘉里金龍魚糧油食品股份有限公司憑借著在食品及農產品領域的多年深耕,敏銳地洞察到國內餐飲預制菜市場的發展潛力,依托集團全品類糧油產品及全球供應鏈優勢,在全國布局建設中央廚房園區。西安中央廚房項目便是其投資興建的高度自動化中央廚房集成園區,主要建設了生產車間、庫房、污水處理站以及辦公輔助設施等。

該項目預計總投資約43.7億元,總占地面積18.1萬㎡,建筑面積58.6萬㎡。主要生產學生餐、調理包、肉夾饃、凈菜、面包糕點、速凍米面制品等,滿足不同就餐場景下消費者對食品營養、美味、便捷的需求,也滿足了商戶提高出餐效率、穩定菜品標準的需求。

萬事達助力外圍護建設
綠色環保,專業可靠

食品加工與儲存對環境的溫度、濕度、衛生有著嚴格的要求,西安中央廚房項目采用萬事達建筑鋼品研發的無檁體系墻體構造,其熱橋更少,保溫隔熱性能相較于有檁體系更高,有效減少室內外溫差對食品加工的影響,保持恒定的加工環境溫度,有利于食品加工過程中的溫度控制和質量保證。

項目外墻材料也同樣選擇了萬事達建筑鋼品的綠色建材——麗彩鼎?夾芯板,已通過美國FM認證,該板材運用閉口式空腔防水構造,兼有雨屏作用,避免了毛細滲水,提升防水和隔氣性能;萬事達新一代交錯式磧口,帶來更佳的氣密性;同時,板材安裝邊采用硬質聚氨酯發泡填充,進一步提升保溫性能,為項目營造一個安全、舒適、健康的生產環境。

嘉里白與嘉里綠的色彩組合傳遞出健康、環保、專業的企業形象,讓人聯想到新鮮、有機的食材,同時表達了金龍魚對環境友好和可持續發展的理念。

結語
目前,我國預制菜仍處于發展初期,未來“國標”的出臺,能極大程度化解公眾目前對預制菜的不信任和恐慌心理,真正激發這個“潛在萬億市場”的消費活力。相信金龍魚也將保持自身領先優勢,持續研發創新,滿足不同消費者需求。萬事達建筑鋼品多年來始終堅持探索新材料、新技術,未來,我們也將以綠色新材料賦能制造業,為客戶打造綠色、可持續的高品質工程!

